直播课堂
HOME
直播课堂
正文内容
施耐德plc编程什么语言 工控中最常见的7种PLC编程语言,据说精通5种以上就可以月薪过万
发布时间 : 2025-12-30
作者 : 小编
访问数量 : 23
扫码分享至微信

工控中最常见的7种PLC编程语言,据说精通5种以上就可以月薪过万

plc编程软件有哪些?

1、欧姆龙plc编程软件

欧姆龙plc编程软件集成了CX-Programmer V9.5,能够为欧姆龙PLC编程提供全面的软件支持,本版本为最新版,全面支持32/64位WIN8系统,为多国语言版,支持简体中文。能为网络、可编程终端及伺服系统、电子温度控制等进行设置。适用于已具有电气系统知识(电气工程师或等同者)的负责安装FA系统者、负责设计FA系统者和负责管理和维护FA系统者使用。

2、三菱PLC编程软件

三菱PLC编程软件适用于Q、QnU、QS、QnA、AnS、AnA、FX等全系列可编程控制器。三菱PLC编程软件GX Developer定位为可编程控制器综合开发平台,支持梯形图、指令表、SFC、 ST及FB、Label语言程序设计,网络参数设定,可进行程序的线上更改、监控及调试,具有异地读写PLC程序功能。三菱公司目前最新PLC编程软件。

3、西门子step7

STEP7是西门子的最经典的编程软件,其中对应着西门子S7-300/400系列,属于西门子旧款PLC的代表作。STEP 7具有以下功能:硬件配置和参数设置、通讯组态、编程、测试、启动和维护、文件建档、运行和诊断功能等。STEP 7的所有功能均有大量的在线帮助,用鼠标打开或选中某一对象,按F1可以得到该对象的相关帮助。

在STEP 7中,用项目来管理一个自动化系统的硬件和软件。STEP 7用SIMATIC管理器对项目进行集中管理,它可以方便地浏览SIMATIC S7、M7、C7和WinAC的数据。实现STEP 7各种功能所需的SIMATIC软件工具都集成在STEP 7中。

4、西门子博途

TIA博途是全集成自动化软件TIA portal的简称,是西门子工业自动化集团发布的一款全新的全集成自动化软件。它是业内首个采用统一的工程组态和软件项目环境的自动化软件,几乎适用于所有自动化任务。借助该全新的工程技术软件平台,用户能够快速、直观地开发和调试自动化系统。

5施耐德编程软件

Unity Pro XL是施耐德电气自动化的核心产品,它是新一代软硬件自动化平台。其全新的独创设计缩短了开发时间,处理器的灵活性可以实现更高的性能。基于开放性以及对工具的协同式应用,Unity 在软件开发和控制系统运行上达到了更高水平,它将生产率的提高放在首位。

6、松下plc编程软件

松下FP系列PLC编程软件FPWIN GR 是一款功能强大,好用的系统编程软件。下载后压缩包说明内有序列号,已测试能用。安装包括MEWNET-H链接系统时所需要的软件,用于各种智能模块的设定软件,编程手册,本文件为说明PLC指令的PDF格式文件。

7、Delta WPLSoft台达PLC编程软件

台达PLC编程软件WPLSoft 最新版,在没有真实PLC的情况下,在电脑上模拟运行PLC程序的执行情况。先点仿真,在点那个梯形图监控。就可以右击控制一些量的状态。实现仿真。注意要和PLC连接起来。

启动仿真器之后不必选择通讯接口即可进行监控、上下载程序等通讯功能,操作方式与实际连接PLC相同。仿真器支持定时器及计数器,但定时器与计数器的运行时间会依用户计算机执行效率不同而有所不同。定时器处理方式与DVP-ES/SA系列PLC的动作相同。

PLC编程入门,先来认识6种编程语言

传统的PLC编程语言只有两种,指令表(IL)及梯形图(LD),有的称梯形逻辑图(LLD)。而今为便于各类型的工程技术人员都能使用PLC,PLC厂商都增加了它的编程语言。国际电工组织也制定与几次修订了PLC编程语言国际标准。并在1993年做了全面修订后称之为IEC 61131-3 的修订版。我国在1995年11月发布了GB/T 15969-1/2/3/4 标准,与IEC 61131-1/2/3/4等同。该标准推荐了6种编程语言,除了指令表及结构化文本(ST)为文字语言 ,还有梯形图、功能块图(FBD)、连续功能图(CFC)及顺序功能图(SFC) 等图形语言。

目前,IEC 61131-3编程语言不仅用于PLC,而且还用于集散型控制系统、工业控制计算机、数控系统和远程终端单元。

由于这个标准的建立是在PLC已广泛使用之后,加上它不是强制性标准,所以,有些老的PLC厂商还是在原来语言的基础上做了扩展,并没有完全采用这个标准。再就是,即使语言相同,但细节还是有不少差异。

倒是国产PLC,如和利时公司的LM、LK系列机,是在有了标准之后才开发的,能全面采用这个标准。再就是ABB公司的PLC也使用标准规定的6中语言编程。

下面就给大家简要介绍一番:

指令表(IL)

指令表语言是PLC编程最基本的语言。但是,用它编的程序,可读性较差,目前已不常用。故不在此做介绍。

结构化文本语言(ST)

ST语言与BASIC语言、PASCAL语言或C语言等类似。它没有单一的指令,只有由一组指令构成的含义完整的各种语句。具体语句有赋值语句、条件语句、选择语句、循环语句及其他语句(EXIT语句、RETURN语句、功能块调用语句等)。

不同品牌PLC的ST语言所提供的函数、运算符可能略有不同。

ST语言功能比图形语言强,但不如图形语言直观,目前用的还不大普及。如欧姆龙PLC只是在自编功能块的程序中才可使用它。

同样为ST语言,各PLC厂商的细节不完全一样。

梯形图(LD)

梯形图来源于美国,是一种基于梯级的图形符号布尔语言。

梯形图语言与电气原理图相对应,与原有继电器逻辑控制技术相一致。与原有的继电器逻辑控制技术不同的是,梯形图中的功率流不是实际意义的电流,内部的继电器也不是实际存在的继电器。

梯形图的左母线好像电气原理图的电源线一样,一般不直接与输出类指令(相当于电气原理图的负载)相连,中间总要有能建立逻辑条件的一些指令(相当于电气原理图的控制元件)。但有的PLC也允许这么做。

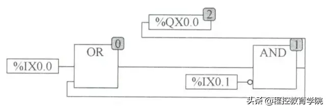
用梯形图符号编的PLC程序,很像电气原理图。如上图所示。图b为施耐德公司Naza PLC用的梯形图。

下图所示为与IL语言程序对应的梯形图程序

关于梯形图的文章有很多,在此不再赘述,本公众号以前也发过几篇文章,大家可以去看一看:

关于PLC梯形图,你想知道都在这里!

想短时间内掌握西门子PLC梯形图的编程方法就一定要看这篇文章!

学PLC必看:看懂电动机控制系统中PLC梯形图和语句表

PLC常用的基本控制电路及梯形图

功能块图(FBD)

FBD语言(一种对应于逻辑电路的图形语言),与电子线路图中的信号流图非常相似。FBD广泛地用于过程控制。

FBD语言是以功能模块为单位,描述控制功能。特别是控制规模较大、控制关系较复杂的系统,用它表达将更为方便。

目前,PLC厂商推出一些高功能及高性能的硬件模块的同时,多提供与其有关的功能块图程序,这为用户使用这些硬件及进行编程提供了很大方便。

FBD语言占用内存较大,执行时间较长,因此,这种语言多只在大、中型可编程序控制器和集散控制系统的编程和组态中采用。

连续功能图(CFC)

CFC与FBD类似,也是按需要选用种种功能块。所不同的是,它更灵活,块的位置可任意摆放,特别有信号反馈时,画起来更方便。

为了块的执行有明确的顺序,它的每个块的右上角都标有序号。但在实际表达时,这个标号也可选择不显示。

FBD及CFC语言在DCS系统编程中用得较多。此外,由于这两种语言差别不大,有时,仅使用FBD语言。因而,有的也把IEC 61131-3自动化编程语言说成5种。

顺序功能图(SFC)

SFC语言以描述控制程序的顺序为特征,以图形方式,简单、清楚地描述系统的所有现象,并能对系统中存有的像死锁、不安全等反常现象进行分析和建模,并可在此基础上编程。所以,得到了广泛的应用。

其实,SFC语言仅仅是一种组织程序的图形化方式。其实际使用要与其它语言配合,否则无法实现其功能。所以,严格地讲,它不能算是完整的编程语言。

1.组成

步(Step)

用方框表示,分有初始步、活动步、不活动(休止)步三种。一个步是否为活动步,即是否处于激活状态,则取决于上一步及与其相应的转移。

动作(Action)

动作是步的组成部分,一个步含有一个或多个动作,用一个附加在步上的矩形框来表示。每一动作中的程序代码都可以用IEC的任一语言如ST、FBD、LD或IL来编写。每一动作还有一个修饰词(Qualifier),用来确定步激活时其动作什么时候执行或终止。

有向连线

从上到下、从左到右的步间连线。也可用加箭头做非上下、左右的步间连线。

转移

在有向连线上的垂直短线。与转移相关的逻辑条件,用文字、布尔代数表达式、图形符号标注在转移短线旁。

2.SFC转移规则

步的转移指的是有向连线相连的前后步激活状态的转换。

步间转移的规则是:

①步间的转移逻辑条件为真;

②被转移步的前一步是活动的。

不满足此两条件,将不转移。

为了启动顺序功能流程图程序的执行,总是要指定一个初始步,其标志为S0,是程序运行开始时被激活的那个步。有个这个初始步,则随着相应转移逻辑条件满足,流程图中步的激活状态将逐步转换,直至最后一步被激活,或根据有向线指定路线不停地循环转换。

3.SFC主要形式

根据结构的不同,可分为以下几种形式:单序列控制、并行序列控制、分支结构序列、转移序列等。

下图所示为一段SFC语言编写的程序。

同样称SFC语言,但有的是合乎标准的,如欧姆龙CJ2所用的,其Action有以上修饰词。有的没有,使用时要看具体软件的说明。

本文选自《PLC实用编程指南 第3版》

编后语

相关问答

施耐德FBD语言的问题?

其实与梯形图是一个道理。FBD编程较适用于功能块较多的情况,尤其是功能块的管脚比较多,彼此之间的联系复杂,在这个界面里可以直接拉线连起来,不需要中间变量...

施耐德m340编程实例?

首先,需要了解施耐德m340的编程环境和语言,主要使用的是UnityProXL软件和LD语言。下面是一个简单的施耐德m340的编程实例:问题:控制一个LED灯,当按下设...

国产plc支持西门子编程吗?

是的,国产PLC通常支持西门子编程。虽然西门子是德国的PLC制造商,但其编程语言(如LadderDiagram、StructuredText等)是国际通用的。国产PLC厂商通常会提供...

施耐德st编程语言里上升沿和下降沿的符号是什么?

施耐德中上升沿是R_TRIG,下降沿是F_TRIG施耐德中上升沿是R_TRIG,下降沿是F_TRIG

st语言延时指令怎么用?

在ST语言中,可以使用TON(通电延时)和TOF(掉电延时)指令来实现延时功能。TON指令TON指令用于实现通电延时功能,其语法如下:TON(IN:=in,PT:=pt,Q=>q,ET...

施耐德电气的logo什么意思?

施耐德品牌的标志。LOGO是徽标或者商标的外语缩写,[1]是LOGOtype的缩写,起到对徽标拥有公司的识别和推广的作用,通过形象的徽标可以让消费者记住公司主体和...

新手怎么调试施耐德ALTIVAR71变频操作步骤?

第一步,确认接线和小功率负载正确后上电。首次上电会要求你设定语言选择CHINESE或中文。第二步,进入变频器菜单里的1.1简单控制修改加速时间ACC和减速时间DE...

欧姆龙cx-programmer如何?

1、欧姆龙plc编程软件欧姆龙plc编程软件集成了CX-ProgrammerV9.5,能够为欧姆龙PLC编程提供全面的软件支持,本版本为最新版,全面支持32/64位WIN8系统,为多国...

怎么用C#语言让pc与plc通过tcpip互联-ZOL问答

如果不使用OPC,则比较复杂,首先需要在PLC中使用FB63、FB64、FB65来与PC建立连接...PLC厂家一般都会提供高级语言的控制接口的:三菱:ComFxPlc/EntQsPlc欧姆...

西门子AS417-2H的技术参数-盖德问答-化工人互助问答社区

乐.有谁知道西门子as417-2h可以带多少i/o模块,主频是多少,每对控制器可以带多少i/o点?先解释下主频问题,西门子的400系列cpu,不同于...先解...

 马赫5无线加速器  密蒙花方 
王经理: 180-0000-0000(微信同号)
10086@qq.com
北京海淀区西三旗街道国际大厦08A座
©2025  上海羊羽卓进出口贸易有限公司  版权所有.All Rights Reserved.  |  程序由Z-BlogPHP强力驱动
网站首页
电话咨询
微信号

QQ

在线咨询真诚为您提供专业解答服务

热线

188-0000-0000
专属服务热线

微信

二维码扫一扫微信交流
顶部